
Rustic House
Location
Avila, Spain
Program
Housing, private cient
Project dates
2024- ongoing
Area
250 m2
Architecture
Peter William Rae
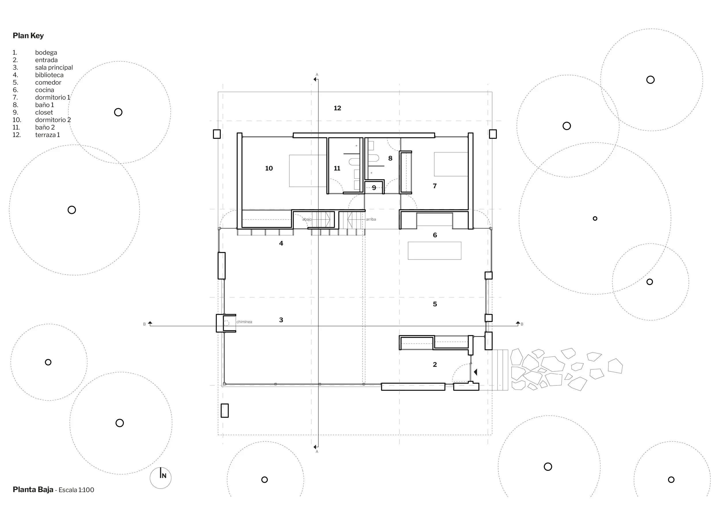
Casa Rústica toma su nombre del deseo del cliente de una vivienda que refleje una sensibilidad rural y se construya de manera sencilla y sobria. El proyecto surge a partir de la pregunta de cómo aprovechar grandes bloques de piedra desechados en una cantera—potencialmente disponibles a un coste más bajo. Con la intención de utilizar el menor número de piezas posible, la piedra se eleva del suelo y sirve de base para una serie de paneles de madera contralaminada (CLT).
La combinación de piedra masiva y CLT ofrece varias ventajas:
Instalación rápida y precisa
Materiales duraderos y expuestos—menos capas, menor tiempo de obra, y espacios cálidos y rústicos
Muy baja huella de carbono y ambientes interiores saludables
La idea es formar un zócalo de piedra—una cimentación elevada de bloques macizos que ancla la casa en el paisaje.
Rustic House takes its name from the client’s desire for a home that reflects a rural sensibility and is built in a plain and simple manner. The design began with the question of how to make use of large-format stone blocks left unused at a quarry—potentially available for purchase at a lower cost. Aiming to use as few pieces as possible, the stone is lifted off the ground and serves as the base for a series of cross-laminated timber (CLT) panels.
The combination of massive stone and engineered timber offers several advantages:
Fast and precise installation
Durable, exposed materials—fewer layers, shorter construction time, and warm, rustic interiors
Very low carbon footprint and healthy indoor environments
Where the site and budget allow, the idea is to use the stone to form a ‘plinth’—a raised foundation of solid stone blocks that anchors the house in its landscape.